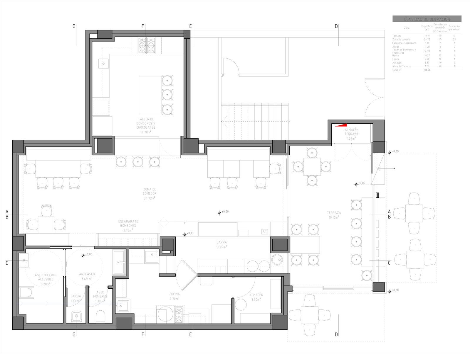
La reforma de la chocolatería revitalizó su ambiente, creando un espacio acogedor y atractivo donde los clientes pueden disfrutar de exquisitos chocolates artesanales. Se renovaron los interiores y se agregaron elementos de diseño inspirados en el mundo del cacao.